













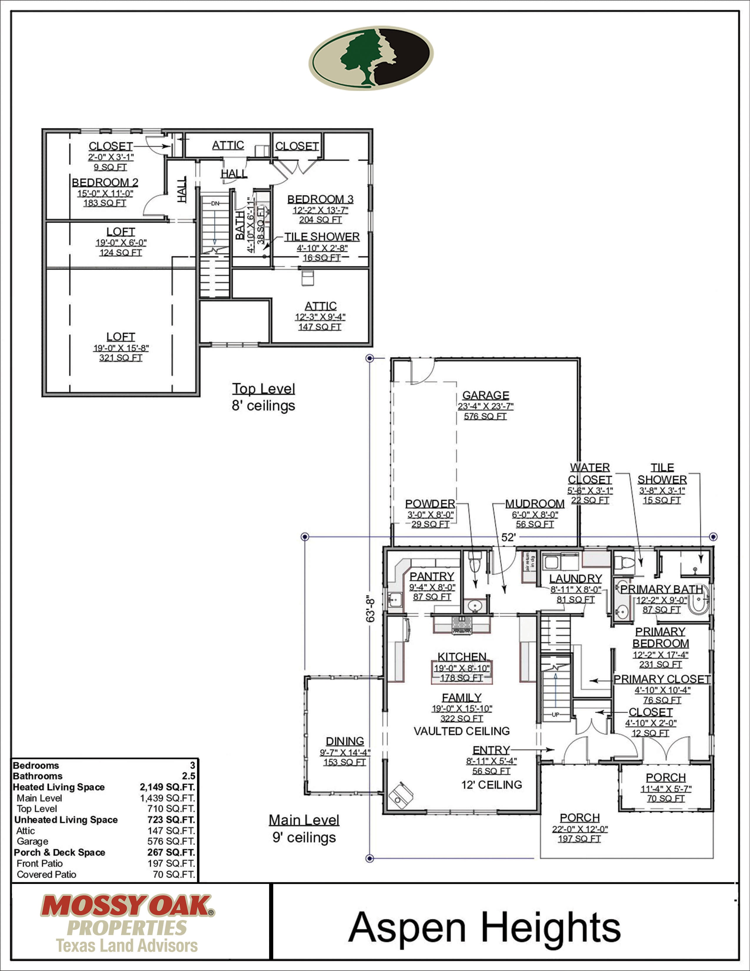
Aspen Heights
Plan Code: P-332-015-S
SQUARE FOOTAGE BREAKDOWN
Total Heated Area: 2,149 sq. ft.
First Floor: 1,439 sq. ft.
Second Floor: 710 sq. ft.
BEDS/BATH
Bedrooms: 3
Full Bathrooms: 2
Half Bathrooms: 1
STYLE
Craftsman
GARAGE
Type: Attached
Area: 576 sq.ft.
Count: 2
Entry: Side
FOUNDATION TYPE
Standard Foundations: Slab
Optional Foundations: Walkout, Monolithic Basement, Daylight, Crawl
ROOF DETAILS
Primary Pitch: 12 on 12
Secondary Pitch: 10 on 12
Framing Type: Stick or Truss
EXTERIOR WALLS
Standard Type(s): 2x6
Optional Type(s): 2x4
DIMENSIONS
Width: 52’0“
Depth: 63’8”
Max Ridge Height: 25’10”
CEILING HEIGHTS
First Floor / 9’0”
Second Floor / 8’0”
THIS PLAN CAN BE MODIFIED.
Choose options














Aspen Heights
Sale price$1,195.00