Skip to content

Cart

Your cart is empty

Carriage Luxe Loft

Carriage Luxe Loft

Carriage Luxe Loft

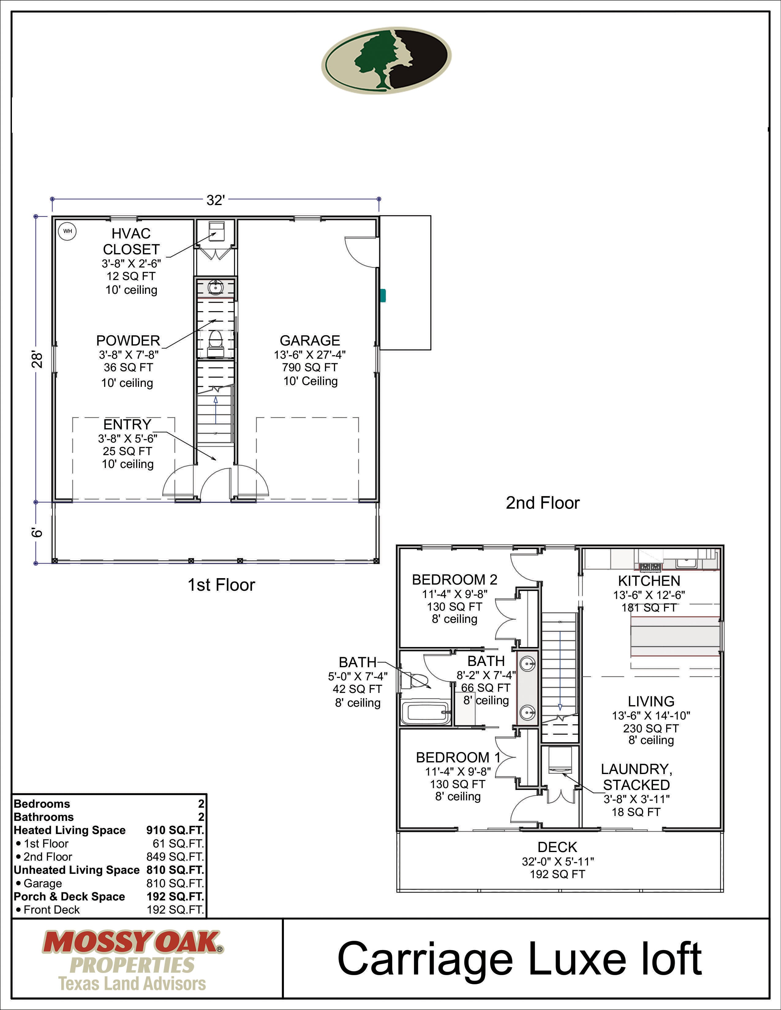
Floor Plan for Carriage Luxe Loft
Sale price$895.00

Plan Code: P-212-001-S

SQUARE FOOTAGE BREAKDOWN

Total Heated Area: 910 sq. ft.
First Floor: 61 sq. ft.
Second Floor: 849 sq. ft.


BEDS/BATH

Bedrooms: 2
Full Bathrooms: 1
Half Bathrooms: 1


STYLE

Cabin 


GARAGE

Type: Attached
Area: 810 sq.ft.
Count: 2
Entry: Front


FOUNDATION TYPE

Standard Foundations: Slab
Optional Foundations: Walkout, Monolithic Basement, Daylight, Crawl


ROOF DETAILS 

Primary Pitch: 4 on 12



EXTERIOR WALLS

Standard Type(s): 2x4
Optional Type(s): 2x6



DIMENSIONS

Width: 32’0“
Depth: 28’0”
Max Ridge Height: 25.4



CEILING HEIGHTS

First Floor / 10’0”
Second Floor / 9’0”


THIS PLAN CAN BE MODIFIED. 

Carriage Luxe Loft
Carriage Luxe Loft Sale price$895.00