Skip to content

Cart

Your cart is empty

Crab Orchard

Crab Orchard

Crab Orchard

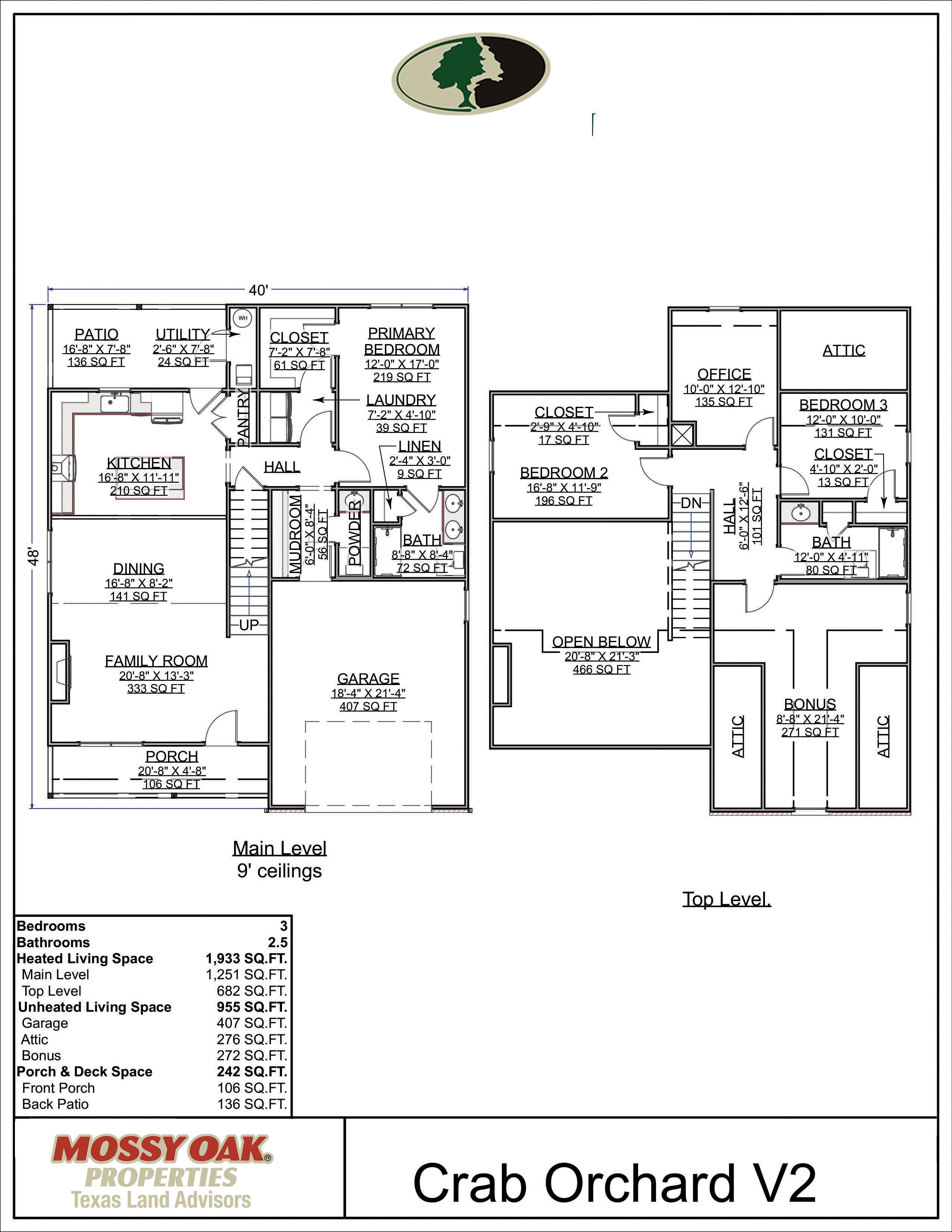
Floor Plan for Crab Orchard
Sale price$1,245.00

Plan Code:  P-442-006-S

SQUARE FOOTAGE BREAKDOWN

Total Heated Area: 2,670 sq. ft.
First Floor: 1,319 sq. ft. 
Second Floor: 1,351 sq. ft.
Unheated Area:  540 sq. ft.


BEDS/BATH

Bedrooms: 4
Full Bathrooms: 3
Half Bathrooms: 1


STYLE

Craftsman


GARAGE

Type: Attached
Area: 407 sq. ft.
Count: 2
Entry: Front 


FOUNDATION TYPE

Standard Foundations: Slab
Optional Foundations: Walkout, Monolithic Basement, Daylight, Basement, Crawl


ROOF DETAILS 

Primary Pitch: 10 on 12
Secondary Pitch: 14 on 12 
Framing Type: Stick or Truss



EXTERIOR WALLS

Standard Type(s): 2x4
Optional Type(s): 2x6



DIMENSIONS

Width: 40’
Depth: 48’



CEILING HEIGHTS

First Floor / 9’0”
Second Floor / 8’0”


THIS PLAN CAN BE MODIFIED. 

Crab Orchard
Crab Orchard Sale price$1,245.00