













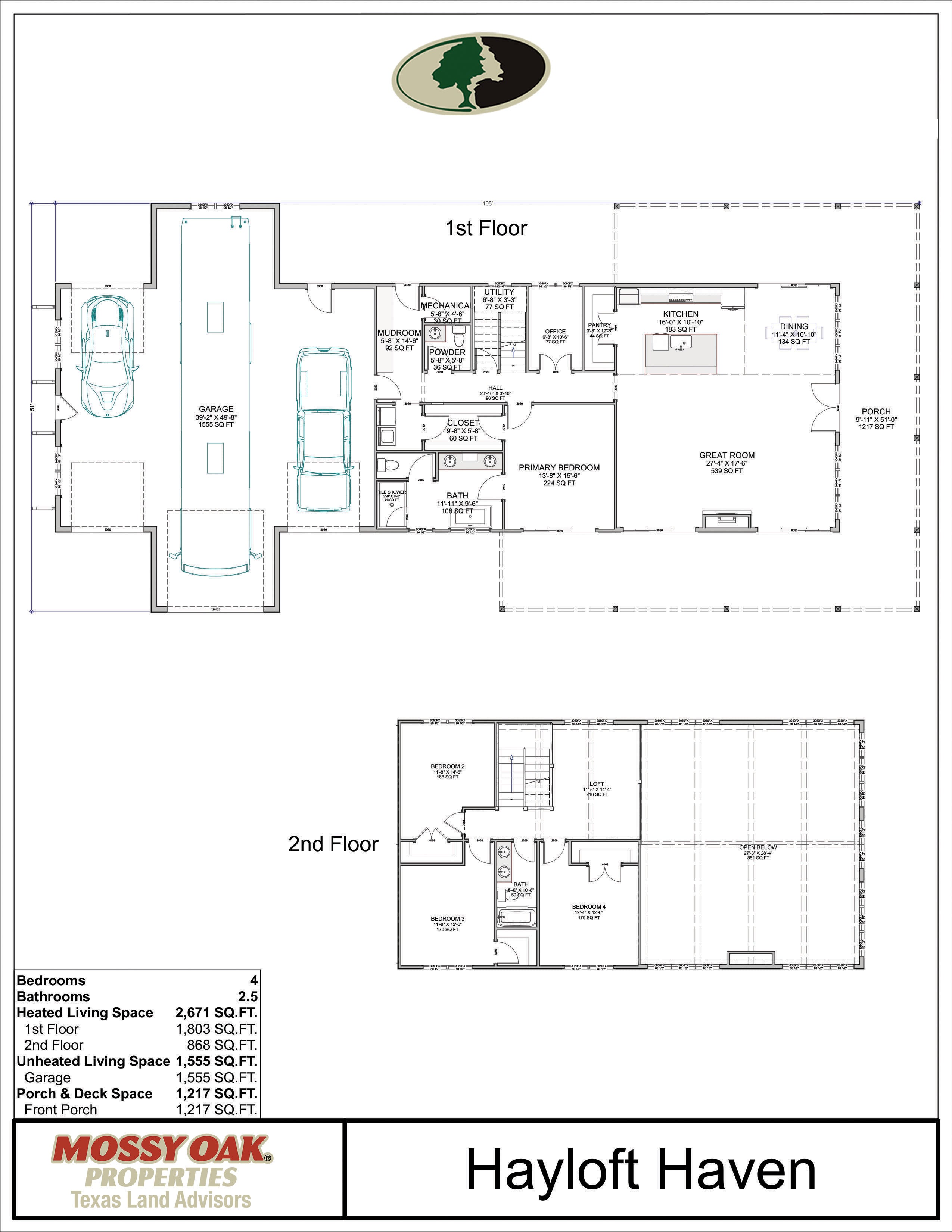
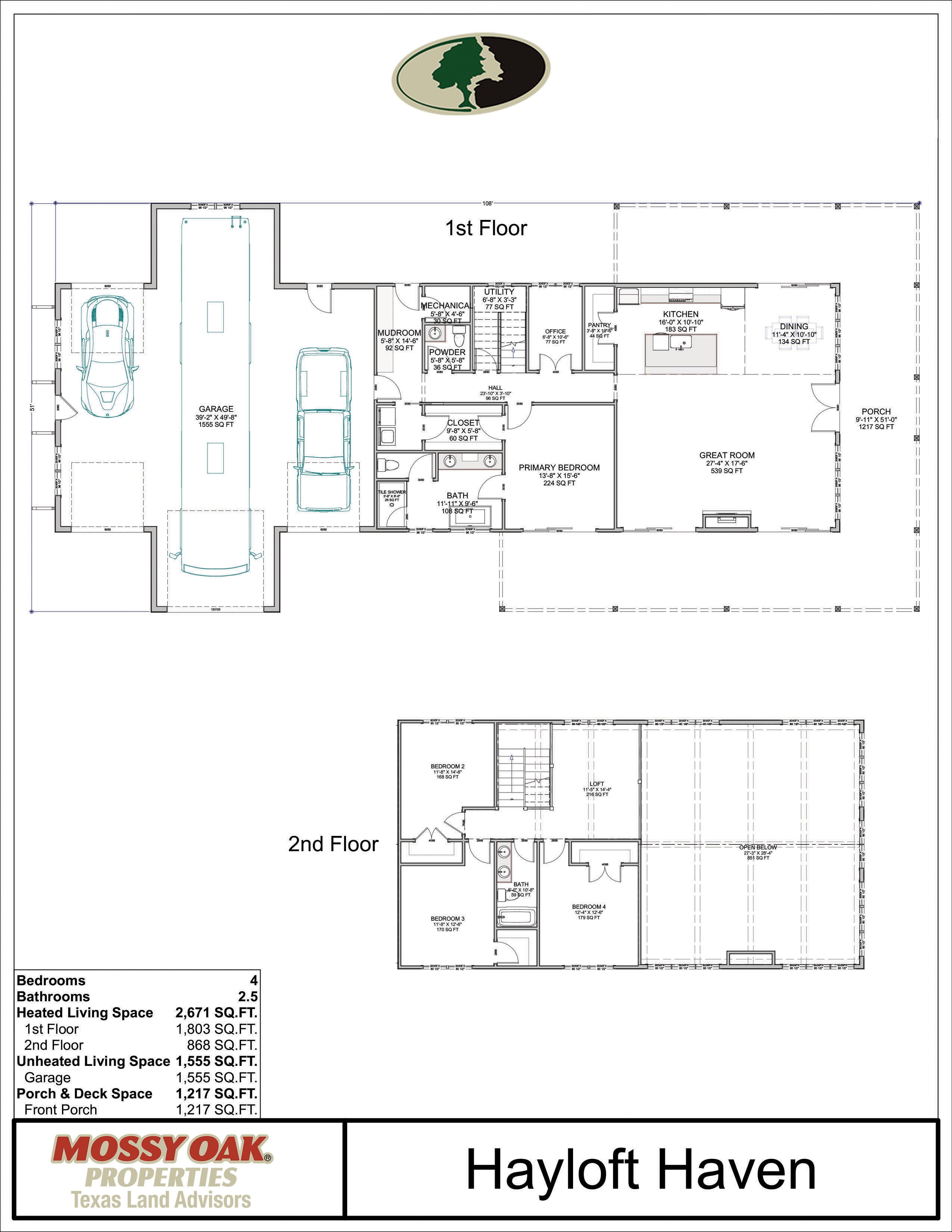
Hayloft Haven
Plan Code: P-433-001-S
SQUARE FOOTAGE BREAKDOWN
Total Heated Area: 2,671 sq. ft.
First Floor: 1,803 sq. ft.
Second Floor: 868 sq. ft
BEDS/BATH
Bedrooms: 4
Full Bathrooms: 2
Half Bathrooms: 1
STYLE
Barndominium
GARAGE
Type: Attached
Area: 1,555 sq. ft.
Count: 3
Entry: Side
FOUNDATION TYPE
Standard Foundations: Slab
Optional Foundations: Walkout, Monolithic Slab, Daylight, Crawl, Basement
ROOF DETAILS
Primary Pitch: 10 on 12
Secondary Pitch: 2 on 12
Framing Type: Stick or Truss
EXTERIOR WALLS
Standard Type(s): 2x4
Optional Type(s): 2x6
DIMENSIONS
Width: 106’0“
Depth: 51’0”
Max Ridge Height: 33’5"
CEILING HEIGHTS
First Floor / 10’0”
Second Floor / 8’0”
THIS PLAN CAN BE MODIFIED.
Choose options














Hayloft Haven
Sale price$1,245.00