











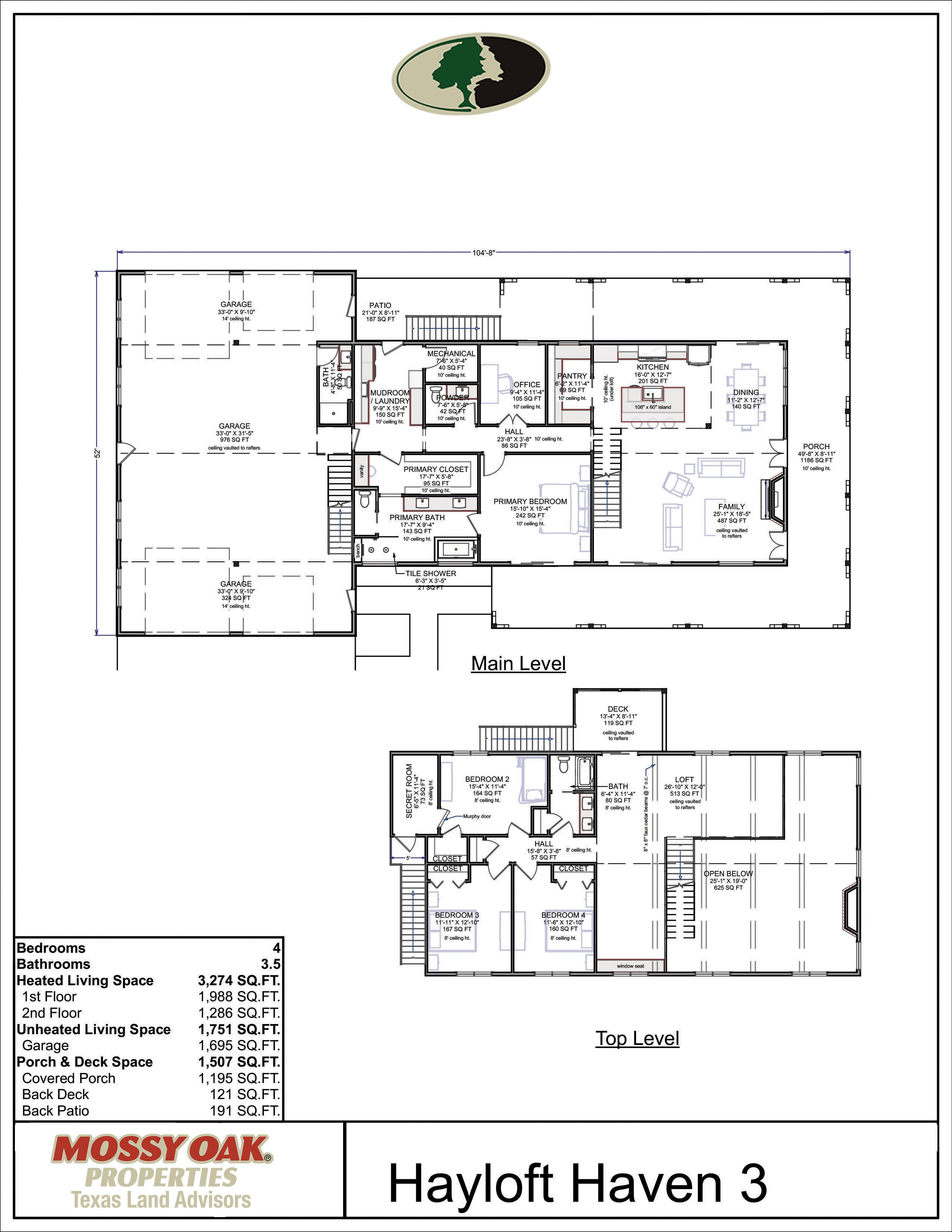
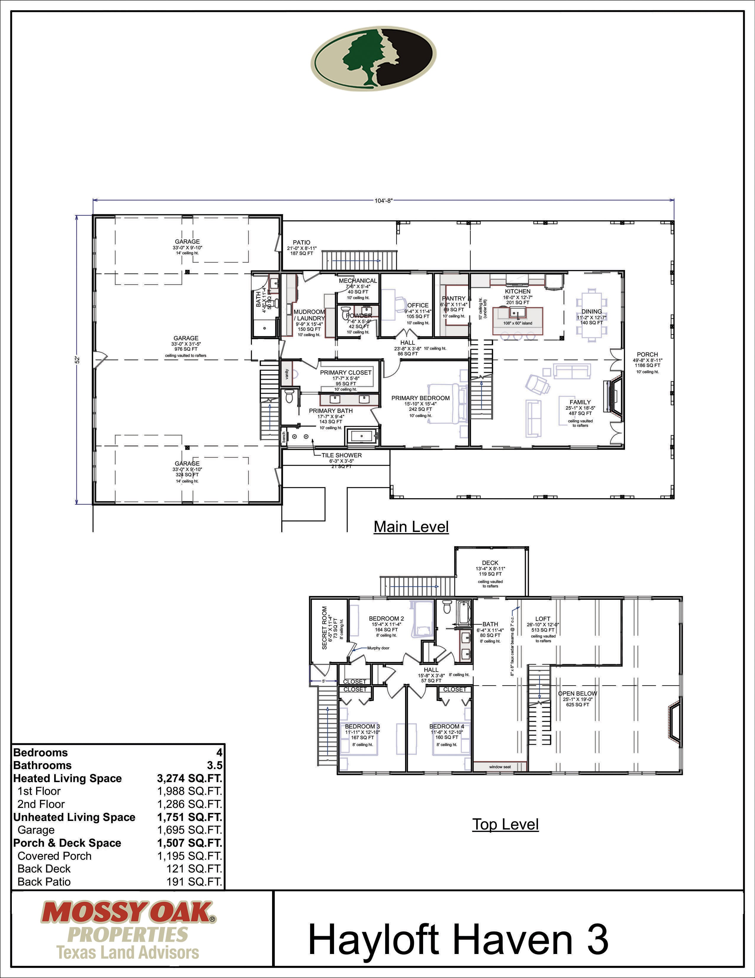
Hayloft Haven III
Plan Code: P-444-001-S
SQUARE FOOTAGE BREAKDOWN
Total Heated Area: 3,274 sq. ft.
First Floor: 1,988 sq. ft.
Second Floor: 1,286 sq. ft.
Unheated Area: 1,751 sq. ft.
BEDS/BATH
Bedrooms: 4
Full Bathrooms: 3
Half Bathrooms: 1
STYLE
Barndominium
GARAGE
Type: Attached
Area: 1,695 sq. ft.
Count: 2
Entry: Front, Back
FOUNDATION TYPE
Standard Foundations: Slab
Optional Foundations: Walkout, Monolithic Basement, Daylight, Basement, Crawl
ROOF DETAILS
Primary Pitch: 10 on 12
Secondary Pitch: 2 on 12
Framing Type: Stick or Truss
EXTERIOR WALLS
Standard Type(s): 2x6
Optional Type(s): 2x6
DIMENSIONS
Width: 104’8“
Depth: 52’
Max Ridge Height: 33’1”
CEILING HEIGHTS
First Floor / 10’0”
Second Floor / 8’0”
THIS PLAN CAN BE MODIFIED.
Choose options












Hayloft Haven III
Sale price$1,245.00