
















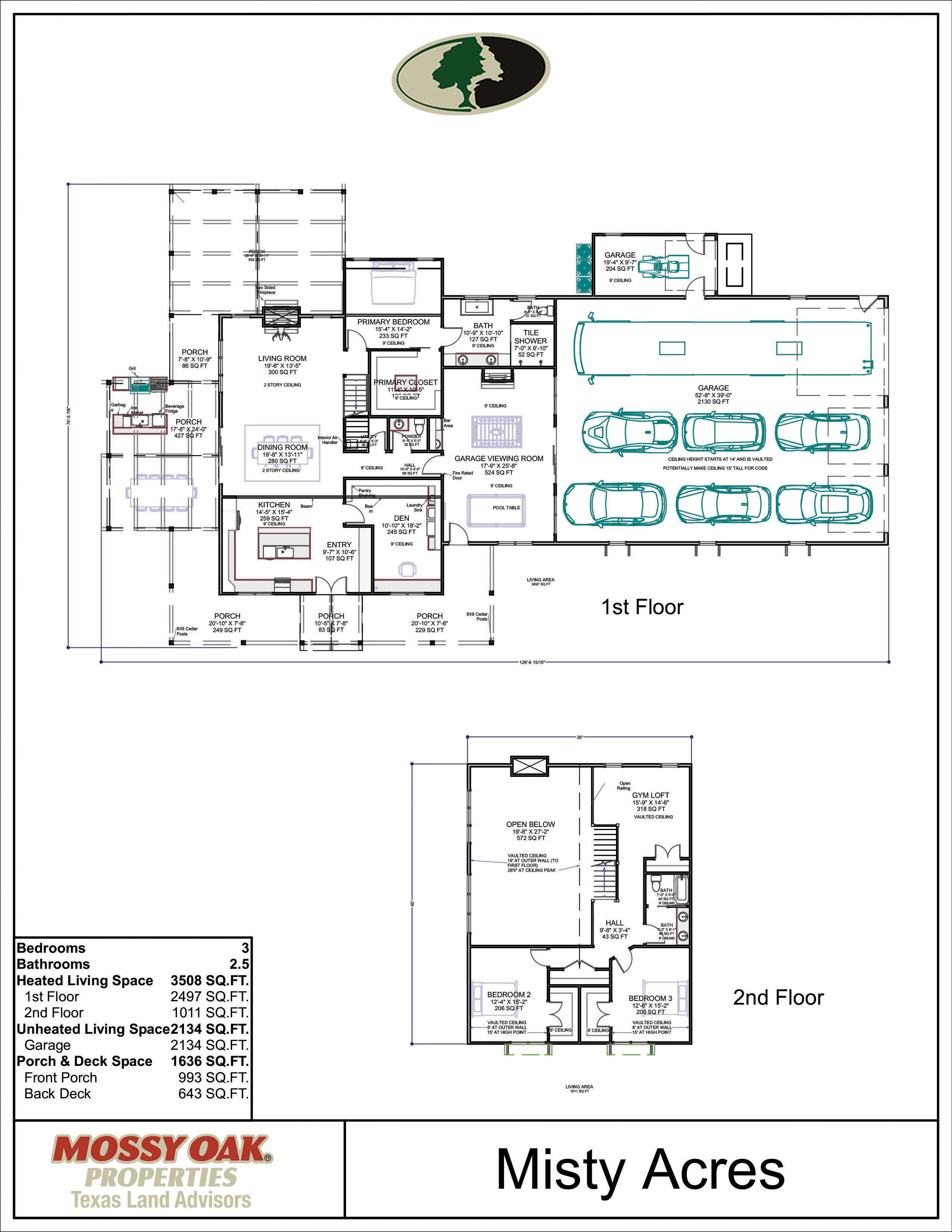
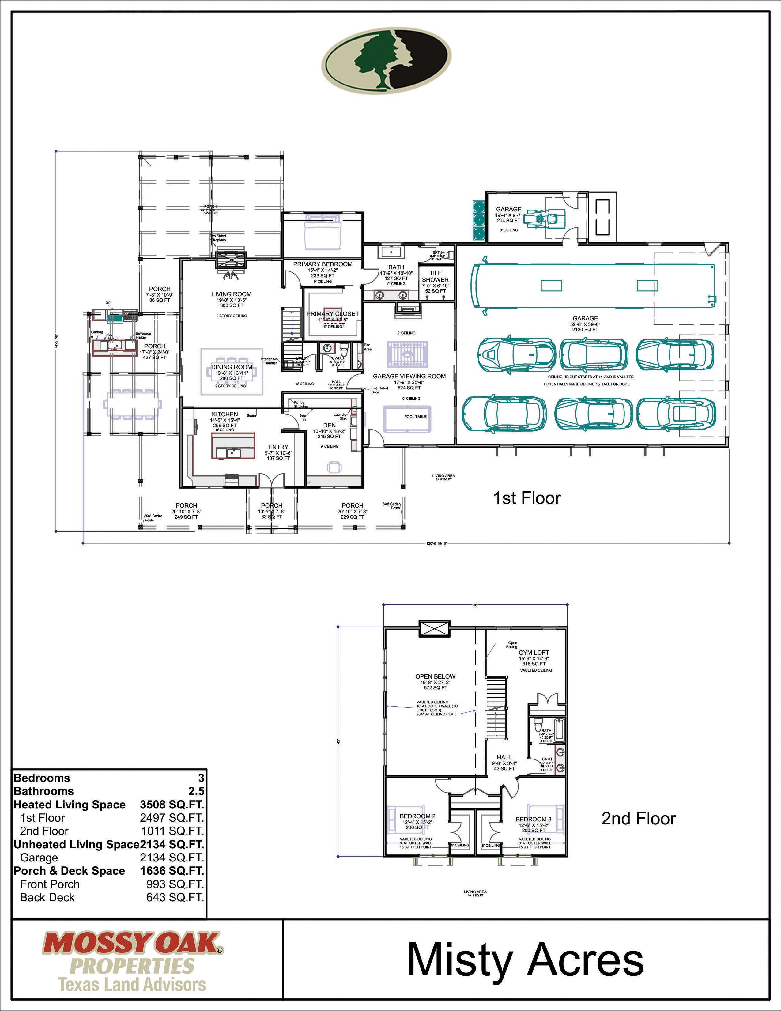
Misty Acres
Plan Code: P-338-001-S
SQUARE FOOTAGE BREAKDOWN
Total Heated Area: 3,508 sq. ft.
First Floor: 2,497 sq. ft.
Second Floor: 1,011 sq. ft.
BEDS/BATH
Bedrooms: 3
Full Bathrooms: 2
Half Bathrooms: 1
STYLE
Barndominium, Craftsman
GARAGE
Type: Attached
Area: 2,134 sq. ft.
Count: 9
Entry: Side
FOUNDATION TYPE
Standard Foundations: Slab
Optional Foundations: Walkout, Monolithic Slab, Daylight, Crawl, Basement
ROOF DETAILS
Primary Pitch: 7 on 12
Secondary Pitch: 4 on 12
Framing Type: Stick or Truss
EXTERIOR WALLS
Standard Type(s): 2x4
Optional Type(s): 2x6
DIMENSIONS
Width: 125’6 3/4“
Depth: 73’1 1/2”
Max Ridge Height: 29’5”
CEILING HEIGHTS
First Floor / 9’0”
Second Floor / 12’0”
THIS PLAN CAN BE MODIFIED.
Choose options

















Misty Acres
Sale price$1,295.00