











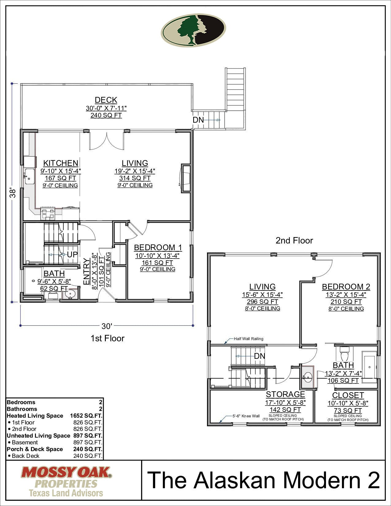
The Alaskan Modern II
Plan Code: P-220-001-B
SQUARE FOOTAGE BREAKDOWN
Total Heated Area: 1,652 sq. ft.
First Floor: 826 sq. ft.
Second Floor: 826 sq. ft
BEDS/BATH
Bedrooms: 2
Full Bathrooms: 2
STYLE
Modern Cabin
GARAGE
None
FOUNDATION TYPE
Standard Foundations: Basement
Optional Foundations: Walkout, Monolithic Slab, Daylight, Crawl, Slab
ROOF DETAILS
Primary Pitch: 4 on 12
Secondary Pitch: 6 on 12
Framing Type: Stick or Truss
EXTERIOR WALLS
Standard Type(s): 2x6
Optional Type(s): 2x4
DIMENSIONS
Width: 30’
Depth: 38'
Max Ridge Height: 26.5’
CEILING HEIGHTS
First Floor / 9’0"
Second Floor / 8'0"
Lower Level / 9'0"
THIS PLAN CAN BE MODIFIED.
Choose options












The Alaskan Modern II
Sale price$1,145.00