
















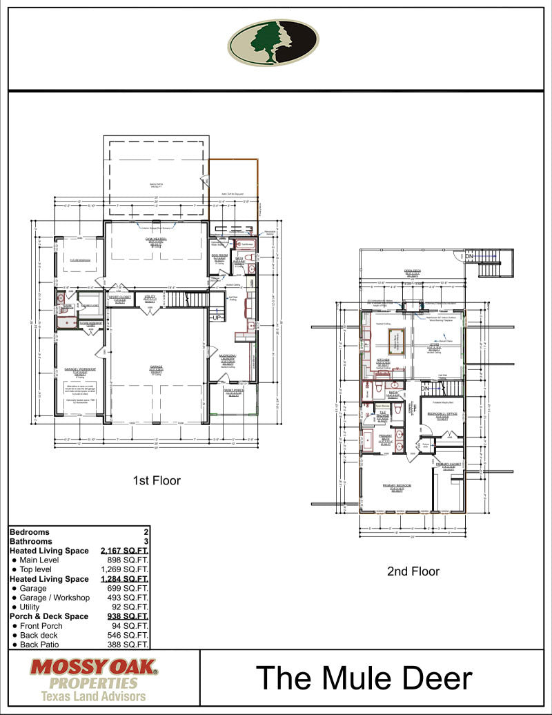
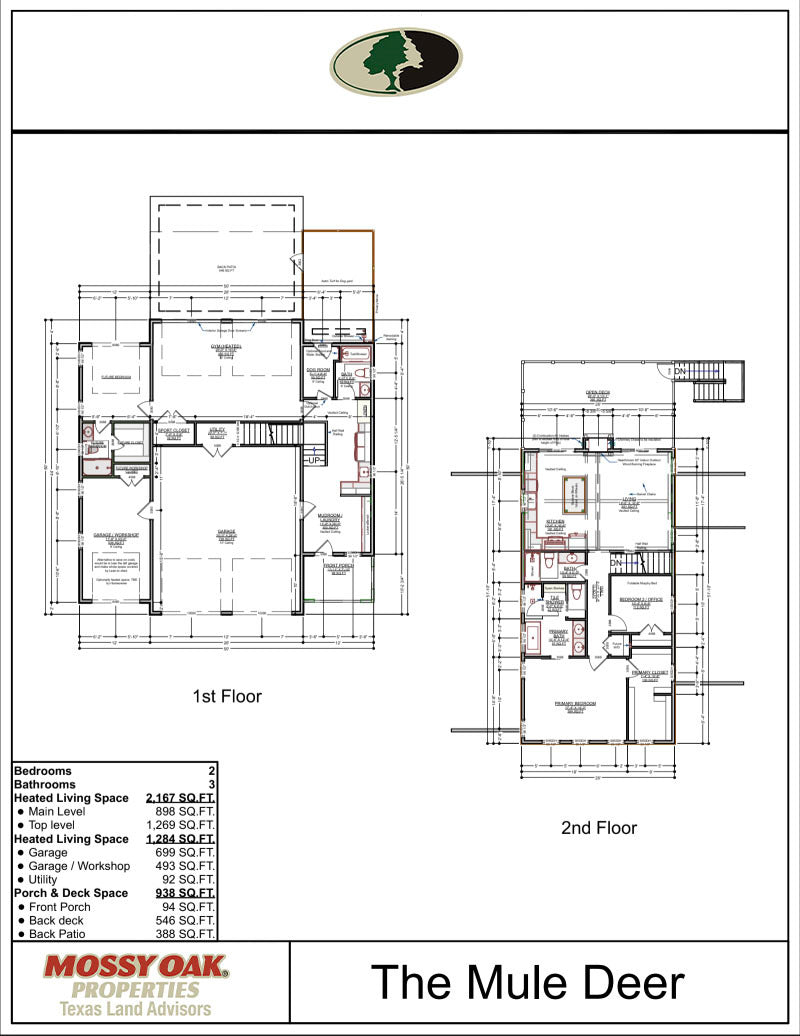
The Mule Deer
Plan Code: P-234-010-S
SQUARE FOOTAGE BREAKDOWN
Total Heated Area: 1,681 sq. ft.
First Floor: 412 sq. ft.
Second Floor: 1,269 sq. ft
BEDS/BATH
Bedrooms: 2
Full Bathrooms: 3
STYLE
Barndominium
GARAGE
Type: Attached
Area: 699 sq. ft.
Count: 4
Entry: Front, Side
FOUNDATION TYPE
Standard Foundations: Slab
Optional Foundations: Walkout, Monolithic Slab, Daylight, Crawl, Basement
ROOF DETAILS
Primary Pitch: 8 on 12
Secondary Pitch: 4 on 12
Framing Type: Stick or Truss
EXTERIOR WALLS
Standard Type(s): 2x4
Optional Type(s): 2x6
DIMENSIONS
Width: 50’- 0”
Depth: 50’-0”
Max Ridge Height: 29’-10”
CEILING HEIGHTS
First Floor / 10’0”
Second Floor / 9’0”
THIS PLAN CAN BE MODIFIED.
Choose options

















The Mule Deer
Sale price$1,145.00