



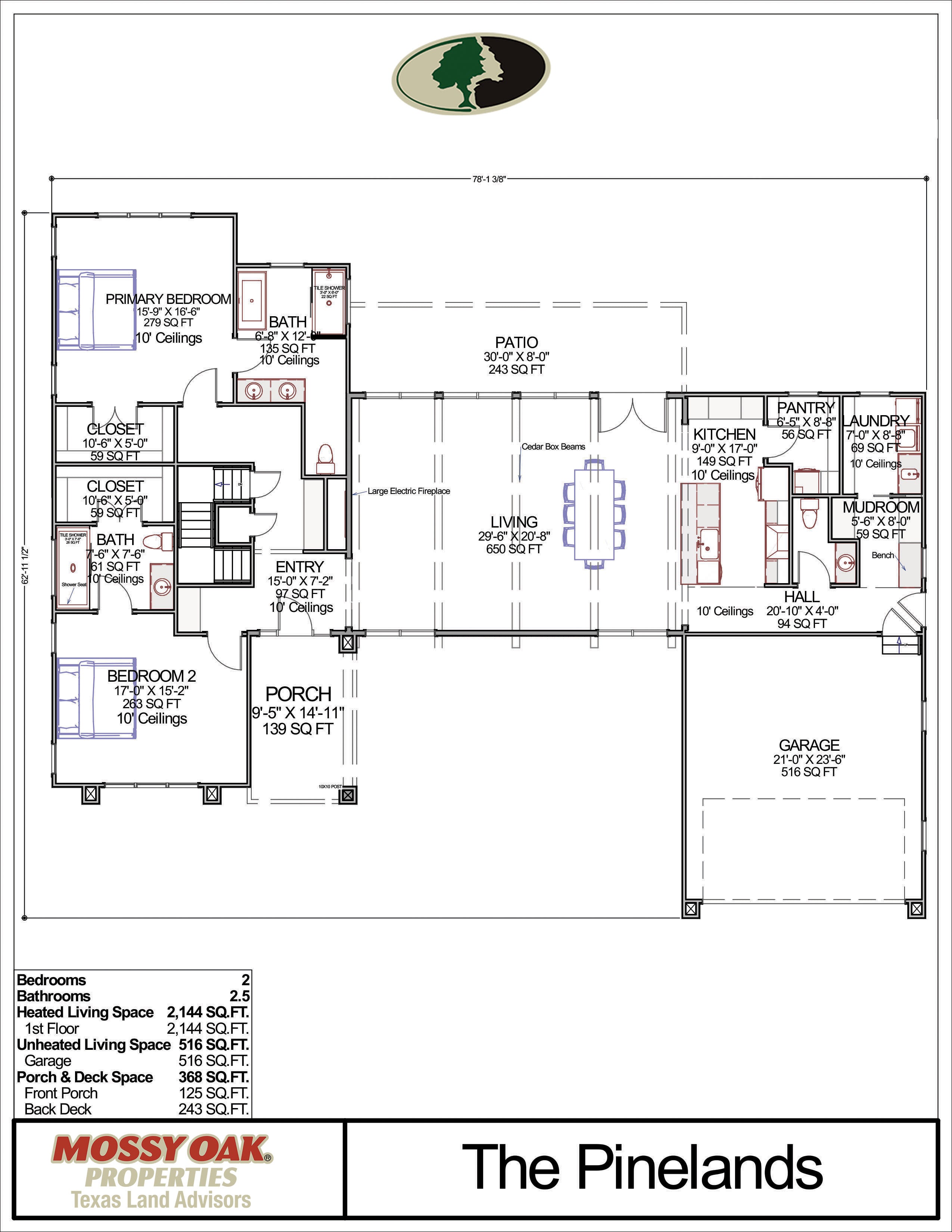
The Pinelands
Plan Code: P-232-001-B
SQUARE FOOTAGE BREAKDOWN
Total Heated Area: 2,144 sq. ft.
First Floor: 2,144 sq. ft.
BEDS/BATH
Bedrooms: 2
Full Bathrooms: 2
Half Bathrooms: 1
STYLE
Midcentury Modern
GARAGE
Type: Attached
Area: 516 sq. ft.
Count: 2 cars
Entry Location: Front
FOUNDATION TYPE
Standard Foundations: Basement
Optional Foundations: Walkout, Monolithic Slab, Daylight, Crawl, Slab
ROOF DETAILS
Primary Pitch: 2 on 12
Secondary Pitch: 1 on 12
Framing Type: Truss
EXTERIOR WALLS
Standard Type(s): 2x4
Optional Type(s): 2x6
DIMENSIONS
Width: 77’11“
Depth: 61’6”
Max Ridge Height: 22’1”
CEILING HEIGHTS
First Floor / 9’0”
Lower Level / 10'0"
THIS PLAN CAN BE MODIFIED.
Choose options




The Pinelands
Sale price$1,195.00