


















Timberview
Plan Code: P-332-008-S
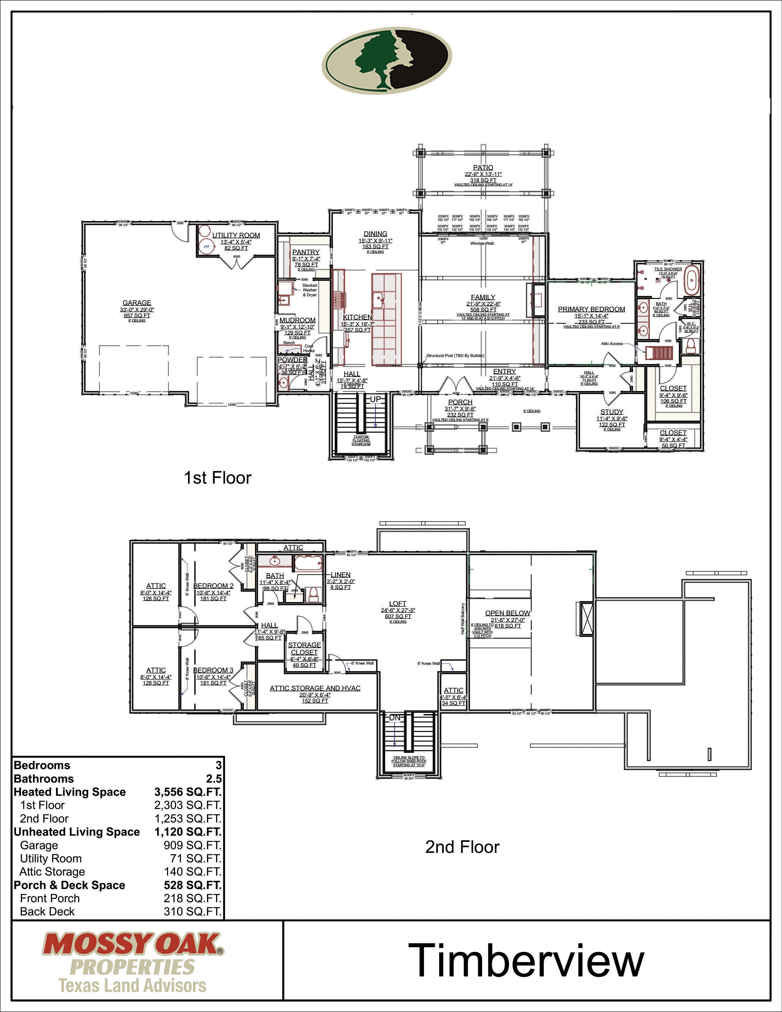
SQUARE FOOTAGE BREAKDOWN
Total Heated Area: 3,556 sq. ft.
First Floor: 2,303 sq. ft.
Second Floor: 1,253 sq. ft
BEDS/BATH
Bedrooms: 3
Full Bathrooms: 2
Half Bathrooms: 1
STYLE
Contemporary
GARAGE
Type: Attached
Area: 980 sq. ft.
Count: 2
Entry: Front
FOUNDATION TYPE
Standard Foundations: Slab
Optional Foundations: Walkout, Monolithic Slab, Daylight, Crawl, Basement
ROOF DETAILS
Primary Pitch: 10 on 12
Secondary Pitch: 4 on 12
Framing Type: Stick or Truss
EXTERIOR WALLS
Standard Type(s): 2x4
Optional Type(s): 2x6
DIMENSIONS
Width: 108’
Depth: 53’-7”
Max Ridge Height: 25’-10 1/2”
CEILING HEIGHTS
First Floor / 9’0”
Second Floor / 8’0”
THIS PLAN CAN BE MODIFIED.
Choose options



















Timberview
Sale price$1,295.00